Lot 2 West Leas

Denholm, Scottish Borders, TD9 8TD

Offers Over £1,200,000

292.62 acres

  • CLOSING DATE - 12:00 PM on Thursday 25th September 2025.
  • Productive areas of mixed arable land, pasture ground, upland grazing and amenity woodland
  • Large areas of commercial and broadleaved woodland plantations providing a longer term source of income
  • Panoramic views of some of the most scenic countryside in the south of Scotland
  • Situated in a rural location close to local amenities and access to the wider Central Borders
  • Potential to expand the sporting, recreational, natural capital and environmental interests

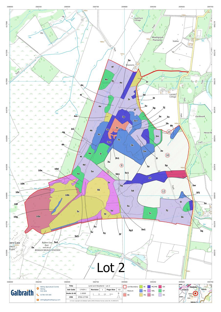
Method of SaleWest Leas is offered for sale as a whole or in 3 lots.Lot 2: About 118.42 Ha (292.62 Acres) of Woodland & Farmland located to the west of the public roadThe woodland and farmland within Lot 2 extend to about 118.42 Ha (292.62 Acres) in total and is located to the west of the minor public road. There are several areas of pasture ground which have been classed as grade 4.1 by the James Hutton Institute and are located to the west of the public road, and enclosed to the south and west by the largest areas of woodland known as the West Leas Plantation and Gilboa Wood. The woodland areas comprise a mix of native broadleaved plantations and several larger areas of commercial Sika Spruce, Norway Spruce and Scots Pine compartments, which have been acquired or planted during the current owner’s tenure. The woodland and farmland benefit from an excellent level of access via two separate forest roads, which lead west from the public road, thereafter there are a number of well maintained internal forest or farm tracks which provide access the majority of each compartment and pasture enclosures. The existing layout and scale of the woodland areas would offer the potential to expand a number of sporting, natural capital and environmental opportunities, and also yield timber income in future. The land and woodland are generally of an easterly aspect rising from its lowest point at 148m adjacent to public road to its highest point just below the summit of Rubers Law at around 400m above sea level.General Remarks and InformationIACSAll the farmland is registered for IACS purposes, and the farm code is 778/0014Nitrate Vulnerable Zone (NVZ)The land at West Leas is not included within a Nitrate Vulnerable Zone.Basic Payment Scheme Entitlements (BPSE) 2025There are no Basic Payment Scheme Entitlements (BPSE) as they belong to the exiting grazing tenant. If applicable, the Purchaser(s) will be responsible upon occupation of the subjects of sale to comply fully with the Statutory Management Requirements to maintain the farmland in Good Agricultural and Environmental Condition (GAEC) as laid down under the Cross Compliance rules of the Basic Payment Scheme Entitlements (BPSE) 2025 for the remainder of the scheme year.Forestry Grant SchemeThere is a Grey Squirrel Control Grant Scheme which has been entered into covering parts of Lot 1 and 2. The purchaser(s) will be responsible upon occupation of the subjects of sale to comply with all ongoing management requirements to meet the Grey Squirrel Control Grant Scheme as laid down under Forestry Grant Scheme Contract for the remainder of the scheme until 2025. For further details, please contact the selling agent.Less-Favoured Area Support Scheme (LFASS)All of the land at West Leas has been designated as being within a Less-Favoured Area.Scottish Government Rural Payments and Inspections DirectorateCotgreen Road, Tweedbank, Galashiels, TD1 3SGTel: 0300 2441400SGRPID.galashiels@gov.scotLocal AuthorityScottish Borders Council, Newtown, St Boswells, Melrose, TD6 0SAMineralsIn so far as the mineral rights form part of the property title they are included within the sale.TimberAll fallen and standing timber is included in the sale in so far as it is owned by the seller.Sporting RightsIn so far as these rights form part of the property title they are included within the sale.Historic & Environmental DesignationsAn area of land forming part of Lot 2 and located just below the summit of Rubers Law has been designated as a scheduled monument as part of the larger Rubers Law, Fort & Roman Signal Station. Further details available via Historic Environment Scotland website www.historicenvironment.scot The Rule Water forms part of the wider River Tweed Designation Special Area of Conservation. Further details available via Nature Scotland Website: https://sitelink.nature.scot/mapFixtures and FittingsThe stone Owel sculpture within garden ground is specifically excluded from the sale. Items of garden machinery and equipment may be available by separate negotiation. All other fixture and fittings within house excluding white goods are included in the sale. No other items are included unless mentioned in the sales particulars.DepositA deposit of 10% of the purchase price shall be paid within seven days of completion of Missives. Deposit will be non-refundable in the event of the purchaser failing to complete for reasons not attributable to the Seller or their Agents.Post CodeTD9 8TDWhat3wordsTo find this property location to within 3 metres, download and use What3Words and enterthe following 3 words:Lot 2: https://w3w.co/icebergs.reset.appraisedSolicitorsLindsays, Caledonian Exchange, 19A Canning Street, Edinburgh, EH3 8HEedinburgh@lindsays.co.uk T. 0131 229 1212ViewingStrictly by appointment with the Selling Agents.Possession and EntryThe farmland is currently subject to an existing grazing agreement with a local farmer until end of December 2025. Vacant possession and entry will be given on completion or such mutual time to be agreed by the seller and the purchaser(s).Anti Money Laundering (AML) RegulationsPlease note that under the 2017 AML regulations we are legally required to carry out money laundering checks against purchasers. Upon verbal acceptance of an offer, we require to identify the purchaser for Anti-Money Laundering purposes. Our service provider ‘First AML’ will contact the purchaser to gather the required identification documents. An information sheet is available from the selling agent on request. We are not able to enter a business relationship with a purchaser until they have been identified. Failure to provide required identification may result in an offer not being considered.Health & SafetyThe property is an agricultural and forestry holding, and appropriate caution should be exercised at all times during inspection particularly in reference to the farm buildings, farmland, woodland areas and water courses.Third Party Rights and ServitudesAccess to Lot 2 via the northern access road is shared with proprietors of the property known as Blawearie and the owner of adjacent areas of woodland known as the Houlettes and Meadsgrove Plantations which lies either side of this access road. It is a condition sale that the owner of the woodland areas known as Houlettes and Medsgrove Plantations will benefit from a new unrestricted right of access over the tracks between pints C-D-E-F.Lot 2 is subject to a right of way which follows the access road to the north of the property between points C-D-FThe proprietors of neighbouring properties known as Laundry Cottage, Wells Old Lodge, North Lodge and Gardeners Cottage currently exercise the right to draw water from a private water tank within field 10 of Lot 2. The water tank is fed from several springs on Ruberslaw. This supply also serves as back up private water supply to West Leas house and buildings and is the main water source for all of the field troughs within Lots 1, 2 & 3. There are several other properties which have rights to draw water from this tank, however it is believed they do not currently exercise these rights. The subjects at West Leas are sold together with, and subject to a title condition which states the owner of West Leas and their successors in title shall not be entitled to increase their consumption of water from the Wells Water System so as adversely to affect the water supply to the other authorised users thereof.In the event the property is sold in lots and if applicable deed of conditions will be drawn up governing all access, services, media, boundaries and maintenance. The subjects are sold together with, and subject to, all existing rights of way, servitudes, wayleaves and others whether contained in the Title Deeds or otherwise, and Purchaser(s) will be deemed to have satisfied themselves in all respects thereof.