Hill View, Dungarthill

Dunkeld, Perth and Kinross, PH8 0JF

Offers Over £550,000

Bedroom Count icon 4

Reception Count icon 1

Bathroom Count icon 3

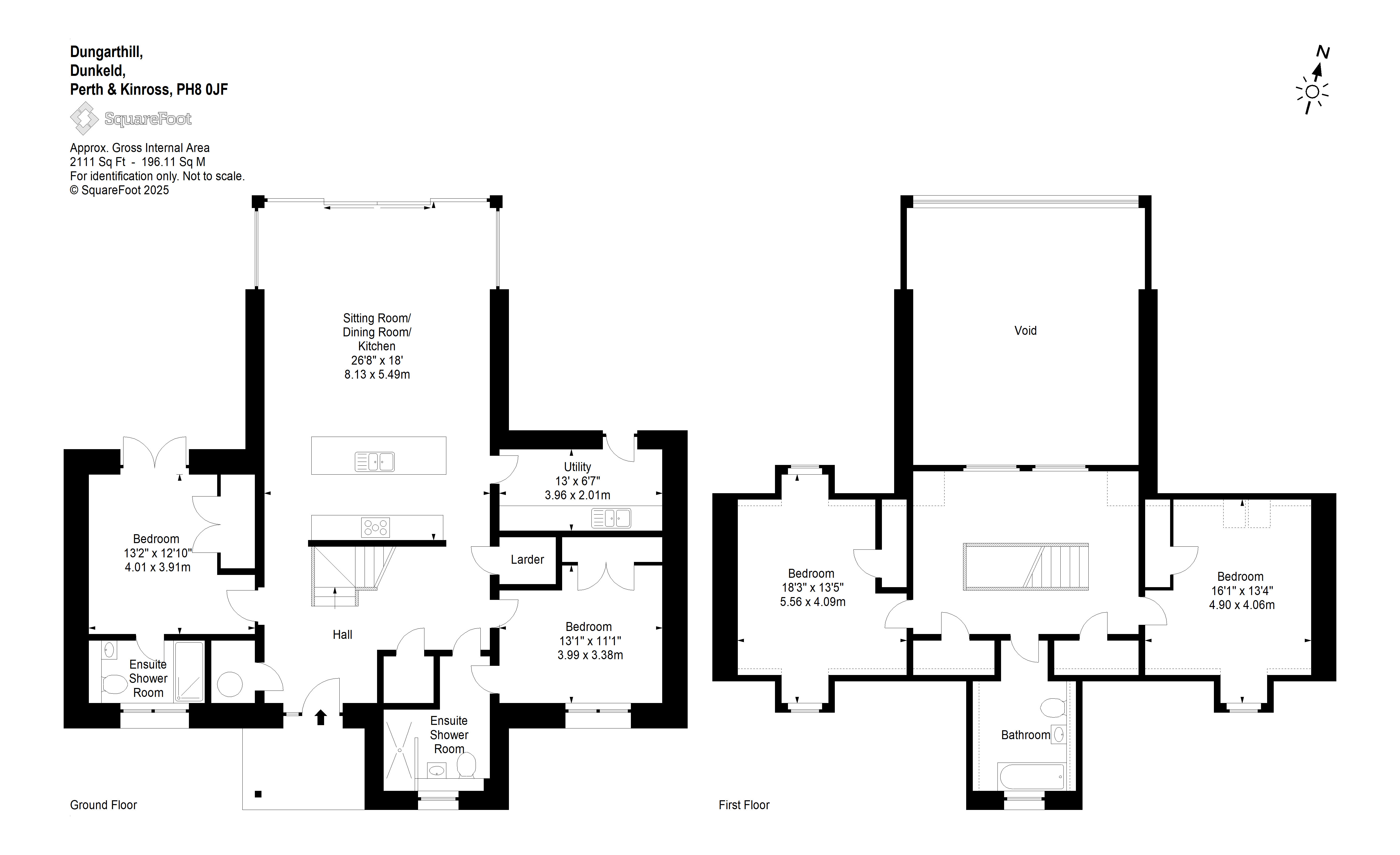
  • Open plan reception space. 4 bedrooms
  • Newly built contemporary home finished to a superb standard
  • Spacious open plan reception space with beautiful views of the surrounding countryside
  • Generously proportioned bedrooms with ample natural light
  • Lovely gardens and ample parking
  • Great location close to Dunkeld and easily accessible for the A9

SITUATION Hill View sits in a lovely rural setting, within a small cluster of principally new build houses at Dungarthill, some 3.5 miles west of Dunkeld, a popular and highly sought after village in the County of Perthshire. Dunkeld, lying on the banks of the River Tay, with its historic Cathedral, is a vibrant village with a thriving community and superb day to day facilities including a delicatessen, bakery, butcher, small supermarket, independent retailers, restaurants, coffee shops, golf course, medical centre and primary school. Dunkeld also has a train station providing regular services north and south together with the sleeper service to London.Perth, known as the Fair City, is approximately 17.5 miles south and provides excellent facilities and services including national retailers, concert hall, theatre, swimming pool, banks, as well as a bus and train station with services to Edinburgh, Glasgow, Inverness and Aberdeen. Edinburgh can be reached in just over an hour’s car journey with its international airport and broad and vibrant city amenities.Perthshire is a county renowned for its wealth of recreational activities on its doorstop. The surrounding hills and glens offer many walking and mountain biking routes while winter sports can be enjoyed at Glenshee Ski Centre which lies about an hours car journey to the north. For the golfer there are numerous courses within a comfortable distance including Dunkeld, Perth and Blairgowrie. Dunkeld is also home to a clay pigeon shooting range, Land Rover Experience Scotland and The Dunkeld House Hotel which offers an extensive range of outdoor recreational activities such as fishing or quad biking. Here there are also a variety of walking and cycling routes along the River Tay.DESCRIPTION Hill View is a lovely contemporary house which has been recently completed to the highest standard. The entrance hall leads to a stunning open plan kitchen and living room with double height ceilings and beautiful views of the surrounding countryside. The kitchen has integrated appliances and an island with a breakfast bar creating a social space ideal for hosting guests. The living room/dining room extends beyond the kitchen and is flexible and adaptable making it ideal for family life. Off the kitchen is a utility room with a back door to the patio and a larder cupboard. He ground floor has two spacious double bedrooms, both with integrated wardrobes and ample room for furniture. One is en suite while the other is jack and jill.A lovely oak staircase leads to the first floor where there is a mezzanine with windows overlooking the living room and the views beyond. This is an ideal space for a study, children’s play area or a studio. There are two bedrooms on the first floor, with integrated wardrobes and lovely views, as well as a family bathroom. ACCOMMODATION Ground Floor: Entrance Hall, Living/Kitchen, Utility, Double Bedroom with Jack and Jill Bathroom, Double Bedroom with En Suite.First Floor: Mezzanine, 2 Double Bedrooms, Bathroom.GARDEN Hill View has lovely garden grounds which provide exceptional views of the surrounding countryside. To the front of the house is a generous driveway with ample parking for multiple cars. To the rear of the property is a lovely patio, ideal for outdoor dining and enjoying the peaceful surroundings. Beyond the patio is the lawn which wraps around the rear and side of the house and provides a super space for children to play or for the creation of a beautiful productive garden.