Tigh An Each, Laggan Glamping and Plot

Tigh An Each, Laggan Glamping and Plot, Newtonmore, Highland, PH20 1BS

Offers Over £850,000

Bedroom Count icon 4

Reception Count icon 2

Bathroom Count icon 4

  • 4 bedroom modern principal house with generous reception spaces
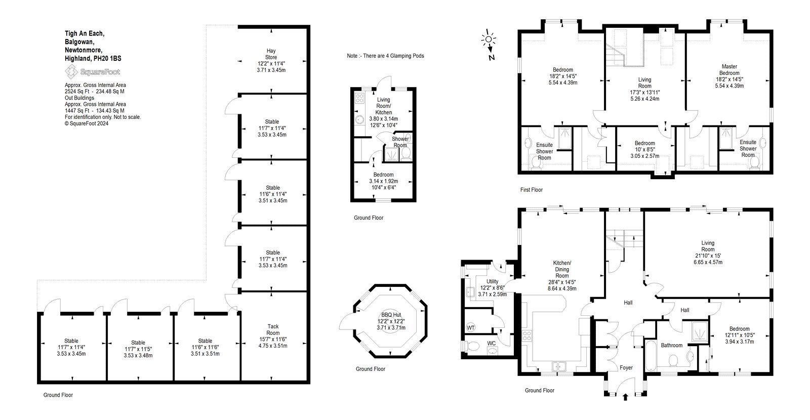
  • 4 luxury glamping pods with an additional BBQ hut
  • 5 generous Caravan and Motorhome Club certified caravan pitches
  • Superb equestrian facilities including 6 stables, tack room, wash bay, paddocks and an arena
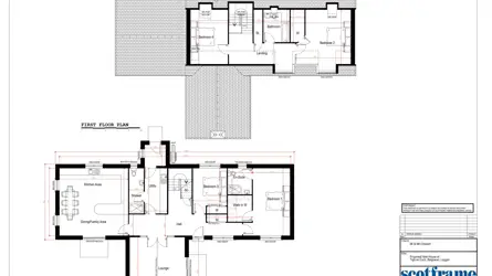
  • Additional building plot with full permission for a spacious 4 bedroom house.
  • Fantastic location within easy reach of Inverness, Perth and Fort William

SITUATION Tigh an Each and Laggan Glamping lies in a superb location in the hamlet of Balgowan, approximately 6.5 miles to the south of the village of Newtonmore. Newtonmore provides a good range of day-to-day facilities including shops, pubs and restaurants, a primary school and a golf club. The city of Inverness can be reached in just over an hours drive and provides an excellent range of facilities, as does the Fair City of Perth which is an hour and twenty minutes to the south. Tigh an Each and Laggan Glamping is particularly well placed to reach a wide range of pursuits that the Highlands of Scotland are renowned for. The property is situated within the Cairngorms National Park and there is a wide variety of walking and cycling routes locally. The popular Highland Wildlife park is only 25 minutes drive to the north and the Laggan Wolftrax mountain biking centre is 4 miles to the west. The town of Aviemore, widely regarded as the centre of winter sports and outdoor pursuits in Scotland is only 35 minutes drive away. Furthermore, Fort William and the west coast can be reached in an hours drive.DESCRIPTION Tigh an Each Tigh an Each is the principal residential house at the property, it provides a spacious and flexible family home with generous reception spaces and superb south-facing views across the surrounding countryside. The accommodation comprises: Ground Floor: Kitchen/dining room, Sitting Room, Hall, Entrance Vestibule, Utility and Bathroom, Double Bedroom, Family Bathroom First Floor: Landing, Master Bedroom with Ensuite and Walk in Wardrobe, Double Bedroom with Ensuite and Walk in Wardrobe, Double Bedroom. The current owners have previously run a successful B&B business from the property.Laggan Glamping PodsThere are four impressive glamping pods thatare spacious and extremely well presented. Each pod has a bedroom space sleeping 5 and a kitchen/living area as well as a bathroom, with a private deck and parking.The pods benefit from access to a super BBQ hut which can seat up to 20 people, as well as a play area for children. Caravan Pitches There are 5 generous Caravan and Motorhome Club certified caravan pitches to the front of the main house, each with a large gravel parking area and divided by well-maintained areas of lawn. These pitches are very popular and have excellent infrastructure.Equestrian Facilities Tigh an Each benefits from superb equestrian facilities with a purpose built stable block with 6 stables, a tack room and a wash bay. The stables have a hard standing yard with direct access to grass paddocks to the front and hardstanding winter turnout paddocks to the rear. There is also a 60 x 30 m arena with an all weather sand and fibre surface.BUILDING PLOTTigh an Each benefits from a generous building plot with permission for a spacious 4 bedroom house. The plot lies just to the north east of the principal house and is designed to provide a superb family home with an open plan kitchen/dinign area, a spacious lounge and 4 generous double bedrooms, two of which are on the ground floor creating lovely lateral living. The master bedroom benefits from an ensuite and a generous walk in wardrobe. The Plot at Tigh an Each is well placed to make the most of the fantastic views of the surroudning countryside and enjoys a superb accessible location.Full details can be found on the Highland Council planning portal reference 20/05138/FULL.GARDEN AND GROUNDS Tigh an Each and Laggan Glamping sits within a 3.76 acre plot with a grazing paddock/dog walking area to the south of the property and well maintained gardens and grounds throughout. The paddock to the south is still classified as crofting ground making it eligible for support in the future. It should be noted that there may be scope for further development of the land, such as additional glamping pods and caravan pitches, subject to obtaining the necessary consents.The BusinessThe B&B business is well established and has been running for 15 years with the glamping pods added in 2018. The pods and B&B enjoy year round occupancy and may repeat visits. The location of the property is seen as a particular benefit and the central location allows swift access to many attractions in the area.Additional information on the business can be made to seriously interested parties following an initial viewing and on the signing of a non-disclosure agreement. Solar PVThe house benefits from the installation of a 3.6KW solar PV panel array on the southern elevation, which partially of sets energy consumption, while solar thermal panels provide additional hot water. There is an optional dual fuel system with an air source heat pump complimenting the conventional oil boiler, allowing the Proprietor to manage fuel costs as efficiently as possible.OFFERSOur clients are seeking offer in excess of £850,000 for their heritable interest in the property including the business and goodwill.