Cragside

Hume, Kelso, Scottish Borders, TD5 7TR

Offers Over £380,000

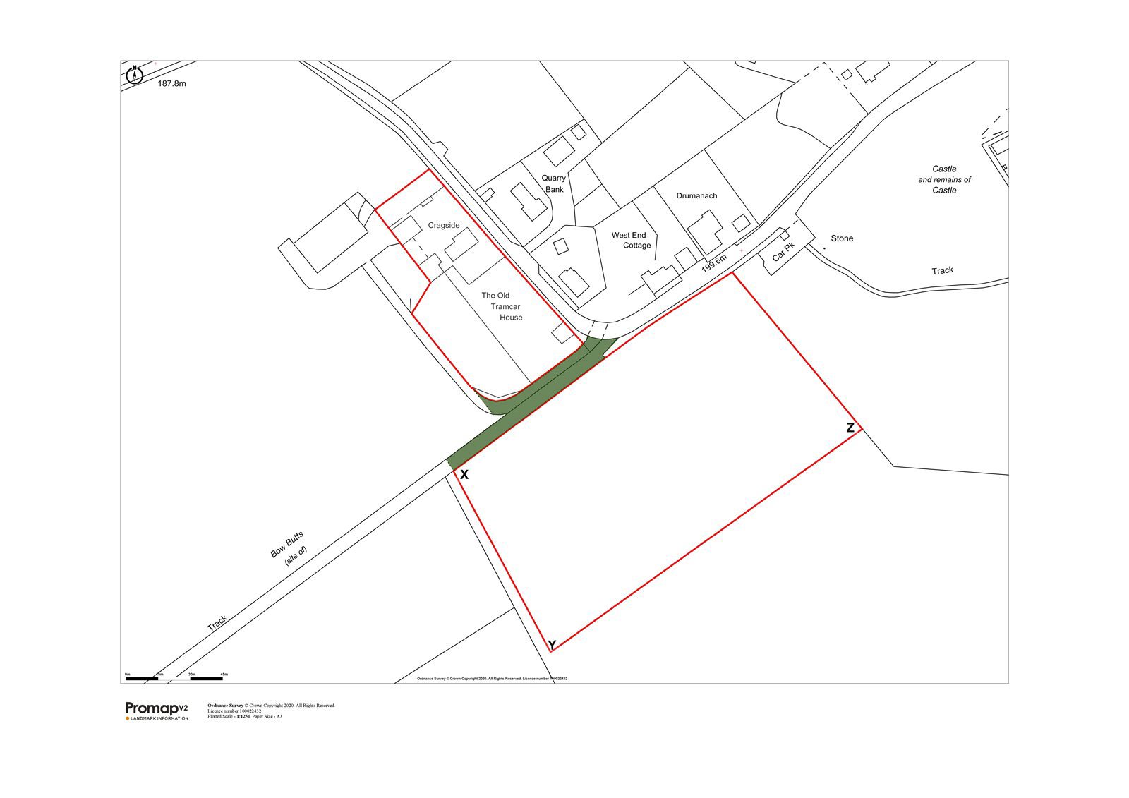
4.89 acres

Bedroom Count icon 3

Reception Count icon 1

Bathroom Count icon 1

  • Outstanding southerly views. Smallholding of about 4.89 acres.
  • Cottage, outbuildings and 3 paddocks.
  • Lifestyle opportunity for small farm or equestrian use.
  • Heart of the Scottish Borders.

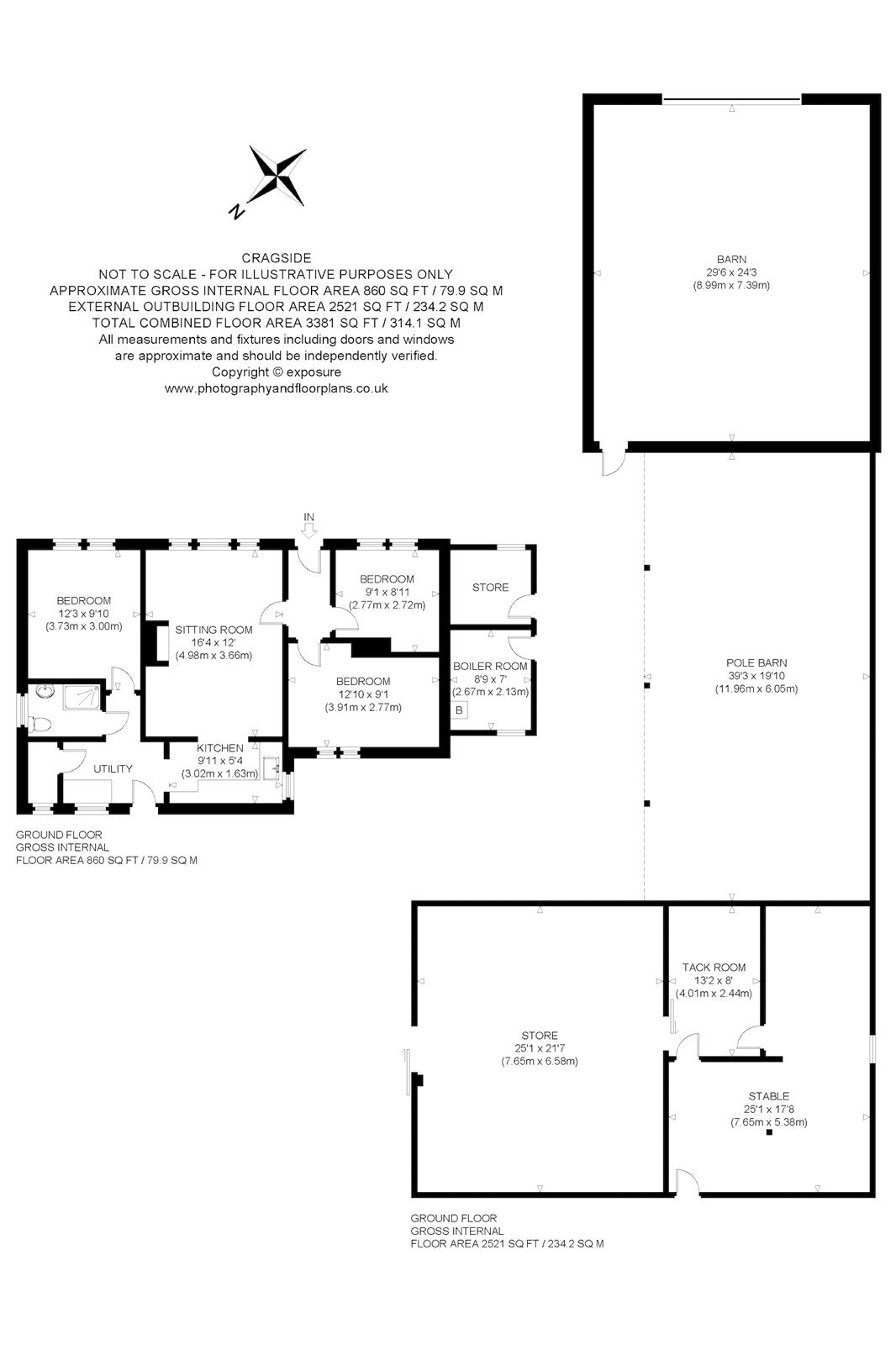
SITUATIONCragside is situated on the western edge of Hume, approximately 6 miles north of Kelso and 9 miles south west of Duns. Kelso is one of the most attractive and unspoilt towns in the Borders and offers good educational and sporting facilities as well as a vast array of independent shopping opportunities. The area offers plenty of outdoor pursuits, including walking, cycling as well as fishing on the Tweed and Teviot. Added to the enviable quality of life, this area is easily accessible with good road links to Edinburgh and Newcastle upon Tyne as well as the mainline east coast railway station at Berwick upon Tweed. The Borders railway line from Edinburgh terminates at Tweedbank, Galashiels, which is 17 miles away.DESCRIPTIONCragside is a lifestyle property amounting to approximately 4.89 acres of grassland, a three bedroomed cottage which has been newly redecorated and a good range of compact farm buildings. A new central heating boiler has been recently fitted.Cragside presents an amazing equestrian opportunity or a small lifestyle farming operation.ACCOMMODATIONEntrance hall, sitting room, kitchen, utility, 3 bedrooms, shower room. External boiler room and store.GARDEN AND LANDThere is a good sized yard adjacent to the cottage and a garden and two paddocks to the front. The boundaries to the land at Cragside are all stock proof.The land is divided into three separate paddocks. Two paddocks lie to the front of the cottage amounting to approximately 0.89 acres with the largest block being approximately 4 acres and situated across the public track. (Bow Butts), adjacent to Hume Castle. OUTBUILDINGS Dutch Barn 1: Metal frame and brick built. Corrugated iron roofing and cladding. Hard core floor.Dutch Barn 2: Steel and corrugated iron roofing and cladding. Open fronted and hard core floor.Brick byre. Stable area with feeding/tack room. AVAILABLE AS A WHOLE OR IN 2 LOTS.Lot 1: 3 bedroom cottage, yard, garden, 2 paddocks to the front and outbuilding. Lot 2: Paddock of about 4 acres.DIRECTIONSFrom Kelso take the B6364 through Stichill to Hume. At the top of the hill take the left turn through Hume, passing Hume Castle on the left. Cragside is on the left hand side as you leave the settlement. To find this property location to within 3 metres, download and use What3Words and enter the following 3 words: vital.crouches.unicornsPOST CODETD5 7TR