Residential Plots

Smailholm Knowe, Smailholm, Kelso, TD5 7PH

Offers Over £175,000

1.3 acres

  • Superb residential plots.
  • About 1.3 acres in total.
  • Full planning for 2 dwellings.
  • Excellent rural location.

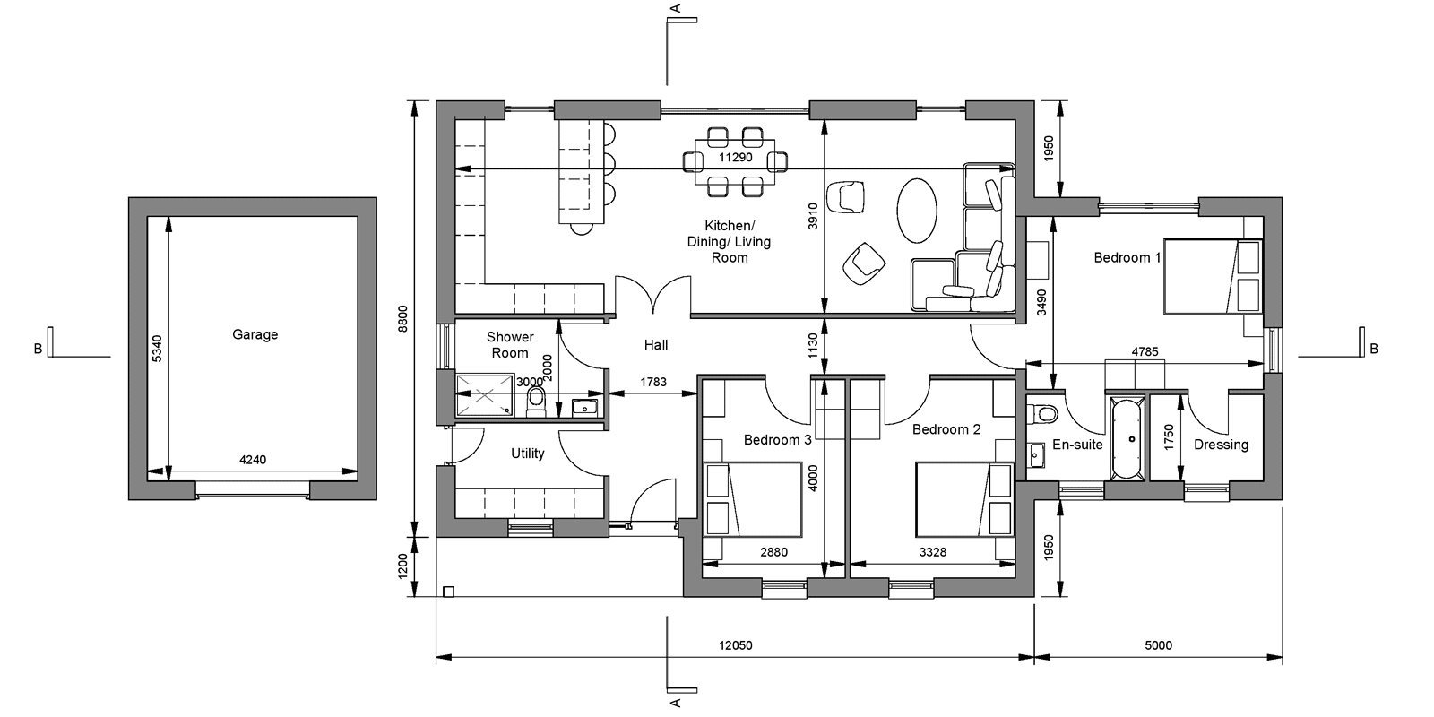
SITUATIONThe plots have an excellent situation on the north side of Smailholm and enjoy extensive outlooks particularly to the north and east. The plots lie within Smailholm’s conservation area. Smailholm (means “small village”) has an active community based around the village hall along with the attractive former Church which dates from 1632.Nearby Smailholm Tower is a classic Border tower which inspired Sir Walter Scott who spent his boyhood holidays at nearby Sandyknowe Farm. For lovers of the outdoors there is good walking in the area.A wide range of amenities are found in Kelso, including a newly built secondary school, and Smailholm is also within easy reach of Earlston, Melrose, the A68, the Borders General Hospital, Scottish Borders Council’s Headquarters and the Borders Railway- which links Tweedbank/Galashiels with Edinburgh and has a regular service. DESCRIPTIONThis is a generous residential site which extends to approximately 0.52 ha (1.3 acres). Planning permission has been granted for two dwellings with attractive designs and high specifications.Any new house built on the plot will enjoy tremendous outlooks. PLANNING Planning permission has been granted for two dwellings. The planning reference is 22/00323/FUL.Any Section 75 contributions will be met by the purchaser.SERVICESMains electricity and water supplies are nearby. Drainage will be private.PROPOSED ACCOMMODATIONPlot A: Ground Floor: Entrance hall, hallway, living room, dining kitchen, utility, shower room and bedroom. First Floor: Upper hallway, 2 bedrooms both en suite.Single car garage. Plot B: Entrance hall, hallway, open plan living/dining/kitchen, utility room, shower room, principal bedroom with dressing room and en suite, 2 further bedrooms. Single car garage. DIRECTIONSTo find this property location to within 3 metres, download and use What3Words and enter the following 3 words: crowbar.quietest.umbrellasVIEWINGSStrictly by appointment with the selling agents. POST CODETD5 7PH