The Charts

Lybster, Caithness, KW3 6AT

Offers Over £360,000

5 acres

Bedroom Count icon 5

Reception Count icon 4

Bathroom Count icon 4

  • A versatile, decrofted house and owner occupied croft with panoramic views
  • Four Reception Rooms. Five Bedrooms.
  • Well-appointed accommodation.
  • Easy option to create separate annexe.
  • Colourful gardens around the house.
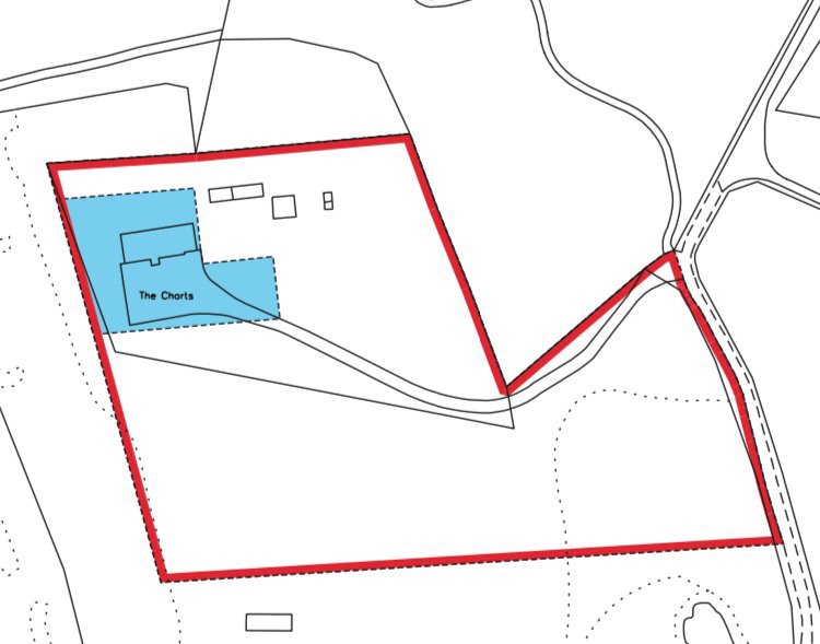
  • Well-managed, registered croft land land extending to 1.8 hectares suitable for livestock grazing.
  • A good range of outbuildings including remains of original stone cottage.
  • About 2 hectares (4.94 acres) in all.

The Charts lies close to the village of Lybster in Caithness. The property is in a spectacular setting, with panoramic 360 degree views over an open landscape of farmland, water and mountains.The northern Highlands of Scotland is one of the few landscapes which is still largely unaltered by human interference and on this eastern edge of the mainland, the wildness has shaped an environment which is at once beautiful and dramatic and offers the opportunity to enjoy nature at its best. The stunning Caithness coastline offers excellent amenity with its sheltered harbours, walks across the coastal grassland dotted with herbs and wildflowers, and its wide sandy beaches, excellent for surfing. The stunning landscape of the coast is set against a backdrop of spectacular mountains, home to a wide variety of wildlife and offering challenging mountain climbs.Lybster, which is just a short distance from The Charts, is an attractive, 19th Century village which grew up around its fishing industry. It is no longer a fishing port but still has its picturesque harbour as well as a primary school, hotels, a café, and beautiful coastal walks. Wick has a good range of shops and facilities including schooling up to secondary level, North Highland College, supermarkets, a railway station and a hospital. Wick Airport lies just outside the town and has regular flights to Aberdeen and Edinburgh.Built in 2009, the current owners purchased the property in 2021 and since then have improved the house and grounds to create a well-appointed and versatile property with breathtaking views. The house provides comfortable family accommodation, where the semi-open plan design and extensive use of glass fill the house with natural light as well as the benefits of solar gain. The interior has been laid out in such a way that as well as the generous, two storey accommodation, it also offers the potential for a self-contained annexe on the first floor for use as supplementary or letting accommodation, subject to the necessary licencing.Since purchase, the current owners have maintained the property well and improvements include new external doors on the house, new electric garage doors, upgrading the central heating system and redecoration.