Plot 1 Kearsley Farm

Ingoe, Newcastle upon Tyne, Northumberland, NE20 0TA

Asking Price £190,000

  • Building PLot
  • Consent for change of use from agricultural to residential
  • Idyllic rural location

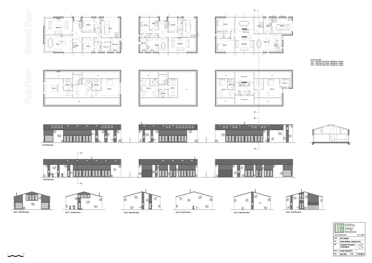
Substantial building plot available with planning consent for change of use to residential in an idyllic rural location.MILEAGES Matfen 2.5 miles Corbridge 9 miles Newcastle upon Tyne 19.5 miles THE PROPERTY An exciting opportunity to acquire one of two substantial building plots available with planning consent for change of use from agricultural to residential in an idyllic rural location. The well-proportioned plots have exceptional far reaching countryside views across the Tyne Valley and north towards Simonside and The Cheviots. Planning permission was granted through permitted development rights under Ref. 24/00166/AGTRES. A further application is about to be submitted to the Local Authority for an improved scheme. The houses are of similar appearance externally - each being over two floors. Internally the accommodation over differing layouts include a reception hall, sitting room, kitchen/dining room, utility, study, cloakroom/wc., 4 bedrooms, 4 en-suite bathrooms, garage, and gardens. Plot 2 is about 2,489 sq. ft. (231.32 Sq. M) excluding the garage and plot 1 which is larger at 3,562 sq. ft. (351.05 Sq. M) excluding a bigger garage also includes a landing with seating space and a plant room.LOCATION Located close to the pretty hamlet of Ingoe, the plots are well placed for access to Matfen, a desirable and popular village in the Tyne Valley, whilst being extremely accessible for Corbridge, Newcastle International Airport and city centre. Matfen has a village shop and café, church, off-licence and pub. Ponteland and Corbridge cater for every day requirements with supermarkets, shops, further good quality restaurants and professional services. Matfen Hall hotel with its golf courses, swimming pool and spa and award-winning restaurant is located close by. There is a first school in Stamfordham and excellent private schooling facilities with Mowden Hall prep school only a few miles away. DIRECTIONS Postcode NE20 0TA. WHAT THREE WORDS /// shunts.they.scantyGENERAL Services: Connections to mains electricity and water are possible. The seller will deliver these supplies to the site, the buyer will be responsible for connection. Private foul drainage to be installed by the buyer. Local Authority: Northumberland County Council Tenure: Freehold Council Tax: Rating to be confirmed EPC: Rating to be confirmed PLANNING INFORMATIONThe permitted Class Q development documents can be found in the Northumberland County Council Planning Portal under Ref. 24/00166/AGTRESVIEWING Strictly by appointment with Galbraith Hexham Tel: 01434 693693 Email: hexham@galbraithgroup.comANTI MONEY LAUNDERING (AML) REGULATIONS Please note that under the 2017 AML regulations we are legally required to carry out money laundering checks against purchasers. To enable us to complete these checks purchasers will need to provide along with their offer either: a) originals of primary (e.g. a passport) and secondary (e.g. current council tax or Utility bill) or b) copies of the same certified and dated by appropriate professional. Failure to provide this information may result in an offer not being considered. IMPORTANT NOTES 1. These particulars are intended to give a fair and overall description of the property. If any points are relevant to your interest, please ask for further information prior to viewing. Prospective purchasers are advised to seek their own professional advice. 2 Areas, measurements and distances are given as a guide. Photographs depict only certain parts of the property. Nothing within the particulars shall be deemed to be a statement as to the structural condition, nor the working order of services and appliances. 3 The Seller will not be obliged to accept the highest, or indeed any offer and has the right to accept an offer at any time or withdraw the property from the market. The Seller will not be liable for any costs incurred by interested parties. 4 If there are matters of particular importance please raise this with us and we will try to check the information for you. Particulars prepared July 2025. Photographs taken August 2025.