Wester Kirklea

Ashkirk, Selkirk, Scottish Borders, TD7 4NS

Offers Over £260,000

Bedroom Count icon 2

Reception Count icon 2

Bathroom Count icon 1

  • Peaceful, rural location. Spacious semi-detached home.
  • Open views. Generous gardens.
  • Garage. Outhouse.

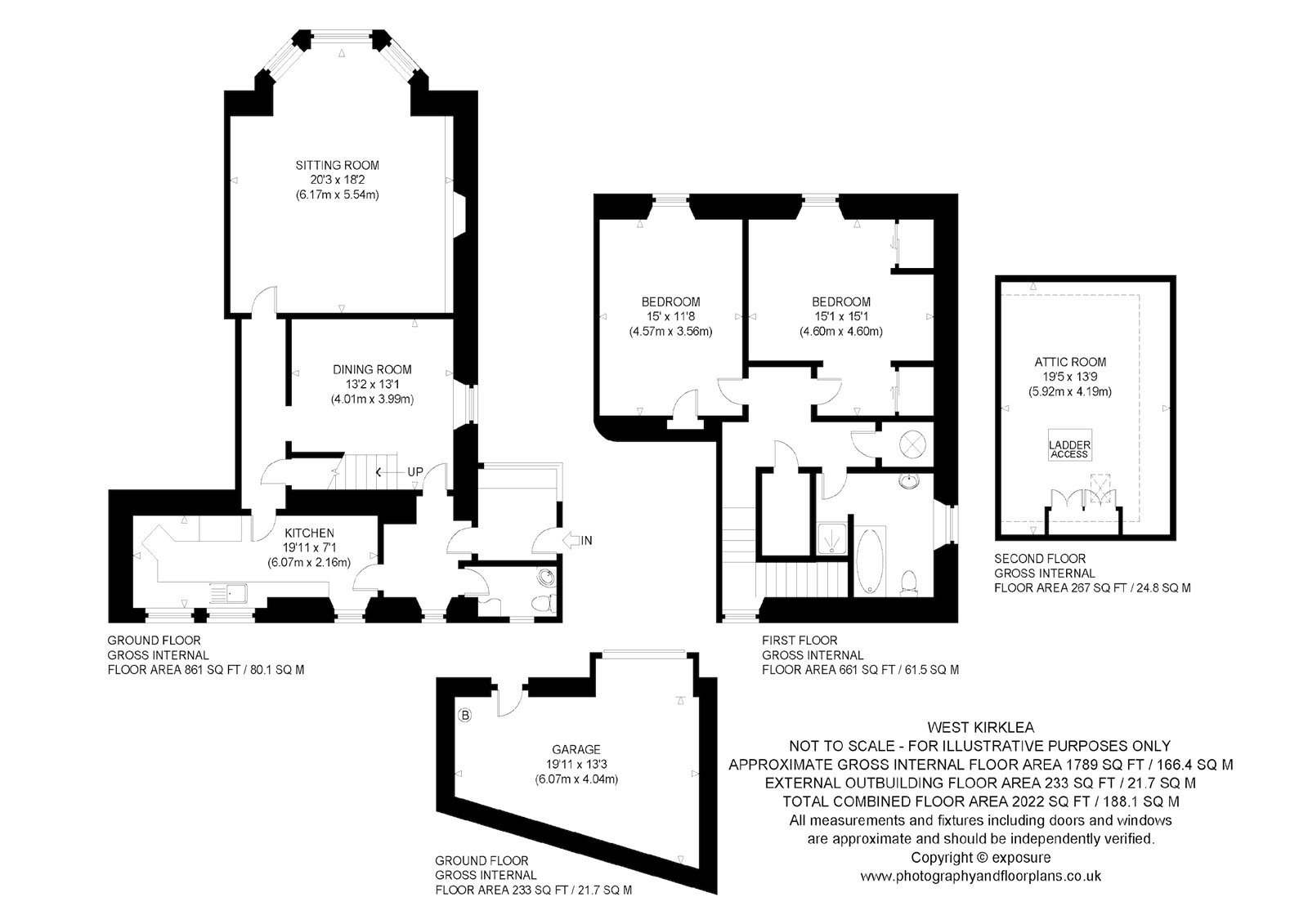
SITUATIONWester Kirklea is located just off the A7; making it well situated with easy access to the main Borders towns and only a few minutes’ drive from nearby Selkirk and Galashiels, with the Borders Rail connection to Edinburgh, providing easy access for commuters. Close to hand are The Woll Golf Course and Restaurant as well as The Smiddy restaurant, with nearby golf driving range, riding stables, village village hall and church. Ashkirk falls into the catchment area for the very highly regarded Primary School at Lilliesleaf and High School in Selkirk. A school bus service operates from the village with the main stop nearby. A variety of shops, supermarkets and recreational facilities can be found in the nearby towns of Selkirk and Galashiels.The area is also well known for its wide variety of countryside walks, cycling, superb fishing and its excellent horse riding. Surrounded by rolling hills close to the largely undiscovered Ettrick and Yarrow valleys, providing some of the most glorious scenery in the Scottish Borders.DESCRIPTIONWester Kirklea is a spacious semi-detached family home spanning 138sqm. Built approximately 1870 and modernised, altered and extended at later dates to provide the current accommodation. The lounge of Wester Kiirklea is a striking room offering a wealth of natural light from the large bay window overlooking the garden, a brick fireplace and open fire completes this beautiful room. The breakfasting kitchen with a range of wall and base units offers the opportunity to modernise to your own desire. Adjacent to the lounge is a second reception room with stairs leading to the first floor where you will find two double bedrooms and family bathroom.A Ramsay ladder leads to a large floored attic space with power supply. Wester Kirklea offers a fantastic opportunity to modernise and a generous garden plot, securing privacy and outlooks. Wester and neighbouring property Easter Kirklea, formally one house and later converted in the early 70’s to two separate dwellings. ACCOMMODATIONGround Floor: Entrance porch, hallway, WC, lounge, kitchen, dining room/snug.Under stair cupboard.First Floor:Landing, two bedrooms, family bathroom.Storage cupboards and floored attic.GARDENThe garden grounds to front, side and rear elevations are an impressive feature, providing a lovely private environment for children and pets to enjoy. There is vegetable patch and greenhouse for the keen gardener. Garage, outhouse and ample parking.A useful log store is also included in the sale.ACCESS/THIRD PARTY RIGHTS OF ACCESS/ SERVITUDES ETCMain entrance driveway is shared between Wester and Easter Kirklea, one septic tank. (located in the garden of Wester Kirklea)DIRECTIONSTravelling south on the A7, pass Stable Life riding centre on your left and continue towards Ashkirk, on the bend there is a signpost |Ancrum, Lilliesleaf | turn off left and follow the road for roughly 1/2 mile with Easter Kirklea on your left elevated up on the hill.WHAT3WORDSTo find this property location to within 3 metres, download and use What3Words via the enclosed link w3w.co//computers.journals.decodedPOST CODETD7 4NS