Oakbank

Kirkpatrick, Thornhill, Dumfries and Galloway, DG3 5JL

Offers Over £585,000

19.16 acres

Bedroom Count icon 4

Reception Count icon 2

Bathroom Count icon 2

  • A delightful lifestyle property with outbuildings and 19 acres in a desirable rural area.
  • Thornhill 3.9 miles Dumfries 12.5 miles Carlisle 47 miles
  • Acreage 19.16 acres (7.75 hectares)
  • 2 reception rooms. 4 bedrooms. 2 Shower Rooms.
  • Spacious/Adaptable semi detached family home with annexe potential
  • Range of Outbuildings
  • 'Ready made’ earning potential from Airbnb / campsite.
  • Strong lifestyle appeal

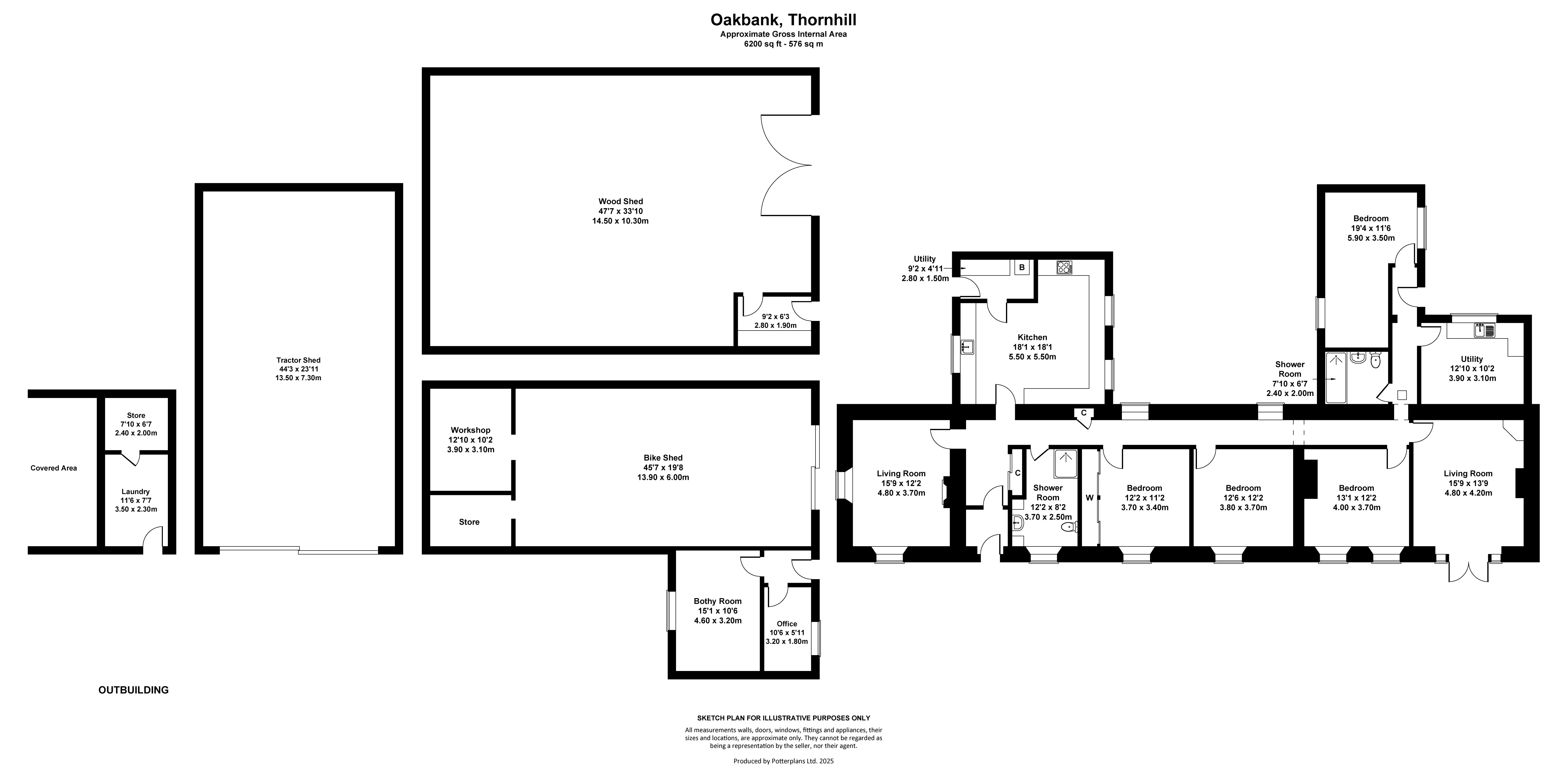
DESCRIPTION Oakbank Farm is a well-maintained four-bedroom property, ideal for families and for those seeking a quieter lifestyle within easy reach of Thornhill and Dumfries. The home is spacious and thoughtfully arranged across a single level, offering flexibility in how the accommodation may be utilised.The property was originally two separate dwellings and has since been incorporated into one, seamlessly integrating the neighbouring cottage. This area now functions as an extension of the main family home, or alternatively, can be easily isolated to provide ancillary accommodation or an additional income stream.The heart of the home is a generous kitchen with ample space for a dining table, creating a welcoming social hub. The kitchen is fitted with a range of modern floor and wall units, with space for a fridge-freezer and a gas hob (available separately). Off the kitchen is a practical utility room housing the boiler and a sink, with a side entrance providing direct access to the courtyard.An entrance hallway, featuring cloakroom storage and front access via the porch, connects the remaining accommodation. The bright and spacious dual-aspect living room, complete with a wood-burning stove, offers a comfortable and inviting reception area.The modern shower room features an attractive walk-in shower, while three generous front-facing bedrooms provide ample space, one of which benefits from a range of fitted wardrobes.A second reception room, ideal for entertaining, features French doors opening directly onto the front garden and currently includes a bespoke bar, perfect for entertaining family and friends.A second kitchen/utility space, with a door to the rear courtyard, a modern shower room, and a fourth well-proportioned bedroom complete the accommodation.Externally, the property enjoys an abundance of outdoor space, with gardens to the front, side, and rear extending through the courtyard, past the outbuildings, and on to the surrounding grounds.Oakbank Farm represents an exceptional lifestyle opportunity, combining a spacious four-bedroom home with approximately 19 acres of land and substantial outbuildings offering flexibility for a range of uses. These include hobby farming, machinery or vehicle work, equestrian pursuits, or operation as a campsite with existing Airbnb income potential. A property of such versatility and appeal, set within a highly desirable location, is a rare find.SITUATION Oakbank is located on the edge of the village of Closeburn. Situated on the A76, the area boasts excellent communication links and historical significance, with the nearby Closeburn Castle dating from the 14th Century. Closeburn offers a primary school and community owned village shop with the Trigony House Hotel nearby. A broader range of shops, schools and services can be found in Thornhill, which features a number of individual local businesses as well as the renowned Wallace Hall Academy secondary school. The regional capital, Dumfries, provides further amenities including a leisure complex, cinema, restaurants, hotels, a large regional hospital with a wide range of outpatient clinics, and the Crichton Campus—home to local campuses of both the University of Glasgow and the University of the West of Scotland.The area is renowned for its diverse range of outdoor pursuits and activities. There is excellent fishing available on the region’s many rivers and lochs, as well as good sea fishing off the coast. Shooting is offered on various estates.Equestrian pursuits are well catered for, with many stables offering both livery and schooling, and several Pony Clubs hosting gymkhanas and events throughout the year. Golfers can enjoy several excellent courses nearby, including the championship course at Southerness.Mountain biking enthusiasts benefit from the region’s Seven Stanes forests, the nearest being Ae Forest. Hillwalking and hiking opportunities abound across the area’s many paths and hills. Birdwatchers will also be endlessly entertained at the nature reserves at Mersehead and Caerlaverock, run by the Wildfowl & Wetlands Trust, where Ospreys and many other species can be seen.Transport links to the area are excellent. The M74 is around a 40-minute drive away, providing easy access to Scotland’s central belt to the north and the M6 leading south.ACCOMMODATION Ground Floor: Utility. Kitchen/Dining. Living Room. Bathroom. Bedroom. Bedroom. Bedroom. Living Room. Kitchen/Utility. Shower Room. Bedroom. OUTBUILDINGSOakbank Farm benefits from an extensive range of outbuildings and workshops, offering significant flexibility for storage, equestrian, hobby farm activities or potential adaptation. Including: Bothy (4.6m x 3.2m) & Office (3.2m x 1.8m) – An adaptable space that has been used as additional accommodation space or ideal hobby/office space for those requiring to work from home. Bike Shed (13.9 x 6m) – Sliding doors to front. Brick built corrugated roofing with concrete floor. Workshop/Cold storage to rear. Wood Shed (14.5m x 10.3m) – Large swing open doors. Single pedestrian door to entrance. Vast space with part mezzanine level storage. Steel portal frame with box profile cladding /walls and polished concrete floor. Insulated with wood burning stove installed. Tractor Shed (13.5 x 7.3m) – Concrete block and steel portal frame with concrete floor. Sliding door. Housing oil tank.Adapted Storage Container (5.75m x 2.4m) – External lean to shelter with 4 bike charging points and bike repair stand. Internally electric and plumbing for appliances. Currently serves the campsite as a laundry. Shower Block with facilities of timber construction to serve the campsite. GROUNDS Oakbank Farm is approached via its own private driveway, leading to the front of the house and into a courtyard that provides access to the side of the property and all outbuildings. There is also ample parking available to the front of the house.The approximately 19 acres of land are securely fenced and divided into manageable sections, making them practical for a variety of uses. The grazing and pastureland are well suited for sheep, goats, or cattle, and are equally ideal for equestrian purposes.For those seeking a more spacious and self-sufficient lifestyle, the land offers excellent potential for the creation of amenity areas, wildflower meadows, and the opportunity to grow your own produce. An enclosed garden area lies to the front and side of the house, predominantly laid to lawn, with the grounds extending to the rear of the property and around the outbuildings.