Sornhill Row Housebuilding Plot

Plot 1, Galston, East Ayrshire, KA4 8NF

Offers Over £65,000

0.97 acres

  • Full planning consent for 1.5 storey dwelling house.
  • About 0.97 acres.
  • Delightful rural setting.
  • Views over open countryside.

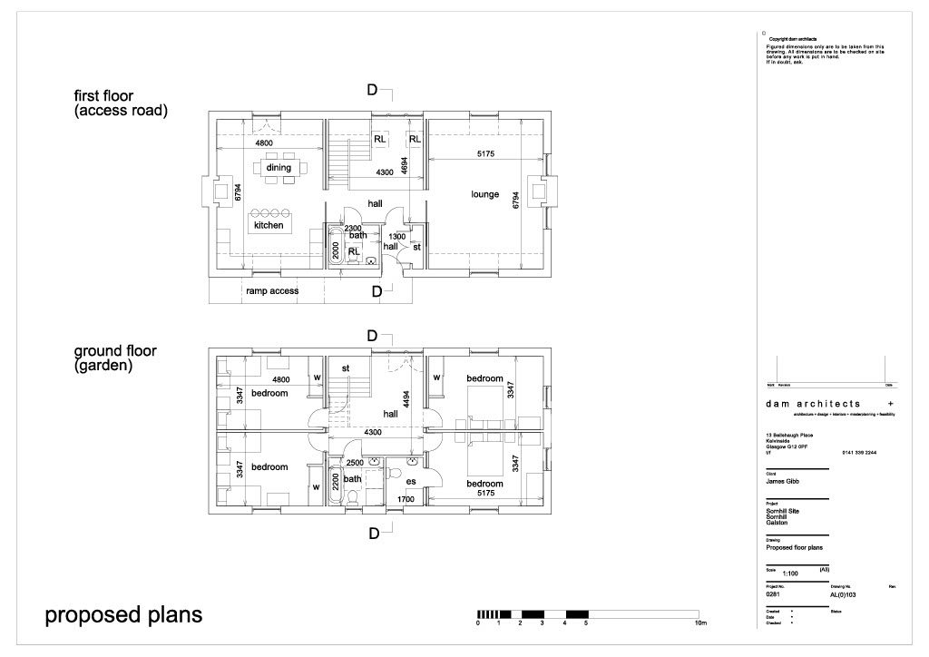
Plot 1 About 0.97 acres.Sornhill Row is an attractive rural hamlet of 13 houses on the B7037 Galston Sorn Road.The plot is very well located for easy access to Glasgow via the M77 (about 26 miles). Transport links within the area are excellent with a regular train service to Glasgow from Kilmarnock (8 miles) and Prestwick Airport with regular scheduled international flights is about 16 miles distant. Galston has primary schooling, secondary schooling and a popular leisure centre. Private schooling is available at Wellington in Ayr and Belmont, Newton Mearns (16 miles). Kilmarnock has a wider range of amenities including restaurants, theatre, hospital, cinema and sports complex.The surrounding rolling countryside of the Irvine Valley offers a network of country lanes, ideal for walking, cycling and hacking. The popular Burn Anne Walk is a pleasant 5 mile circuit starting from Lockhart’s Tower (Barr Castle) in Galston. The castle has had many uses over the years from a jail to a wood store. There are many opportunities for games sports in the area and some of South West Scotland’s finest salmon and trout fishing. Ayrshire is renowned for its many golf courses including the world famous courses at Turnberry, Prestwick and Royal Troon and the privately owned Loudon Gowf Club by Newmilns is about 3 miles. There are excellent yachting facilities at Troon.The plot is situated at the southern end of Sornhill Row, presently an area of scrub and woodland with a pond which slopes from west (adjacent to the road) to east.The proposed house will be one and a half storey with an internal area of about 200m2 with dining kitchen, lounge, bathroom on the upper floor, and 4 bedrooms (one en suite) and bathroom on the lower floor.Planning permission was granted on 25th May 2025 (Planning Reference 23/0211/PP). Copies of the planning consent and plans are available on request from the selling agents.DIRECTIONSFrom Galston, head south through the village on the B3037 (signposted for Sorn). Sornhill is on the left after about 1.8 miles.Sornhill Row Housebuilding Plots, Galston, East Ayrshire, KA4 8NFWHAT3WORDSTo find this property location to within 3 metres, download and use What3Words and enter the following 3 words: firming.havens.feasts//SERVICESAvailable close by:Mains waterMains electricityPrivate drainage to be to septic tank(s)FLOOD RISKFlood maps of the area can be viewed at https://maps.sepa.org.uk/floodmaps/FloodRisk/SearchSurface water and small watercourse flooding: Each year this area has a 10% chance of flooding.The buiding plot is located well outside an area that will be affected by a severe flood (no risk to the buildings). The seller’s engineers have carried out a full risk assessment and this is reflected in the location on the plot of the proposed houses. Please contact the selling agents for further details.