Mill Of Cranhill

Banchory Devenick, Aberdeen, Aberdeenshire, AB12 5XR

Offers Over £575,000

0.48 acres

Bedroom Count icon 5

Reception Count icon 3

Bathroom Count icon 3

  • 3 reception rooms. 5/6 bedrooms
  • Former mill with mill wheel
  • Attractive garden grounds & garage
  • Around 0.48 of an acre
  • Outstanding open views
  • Desirable location close to Aberdeen City

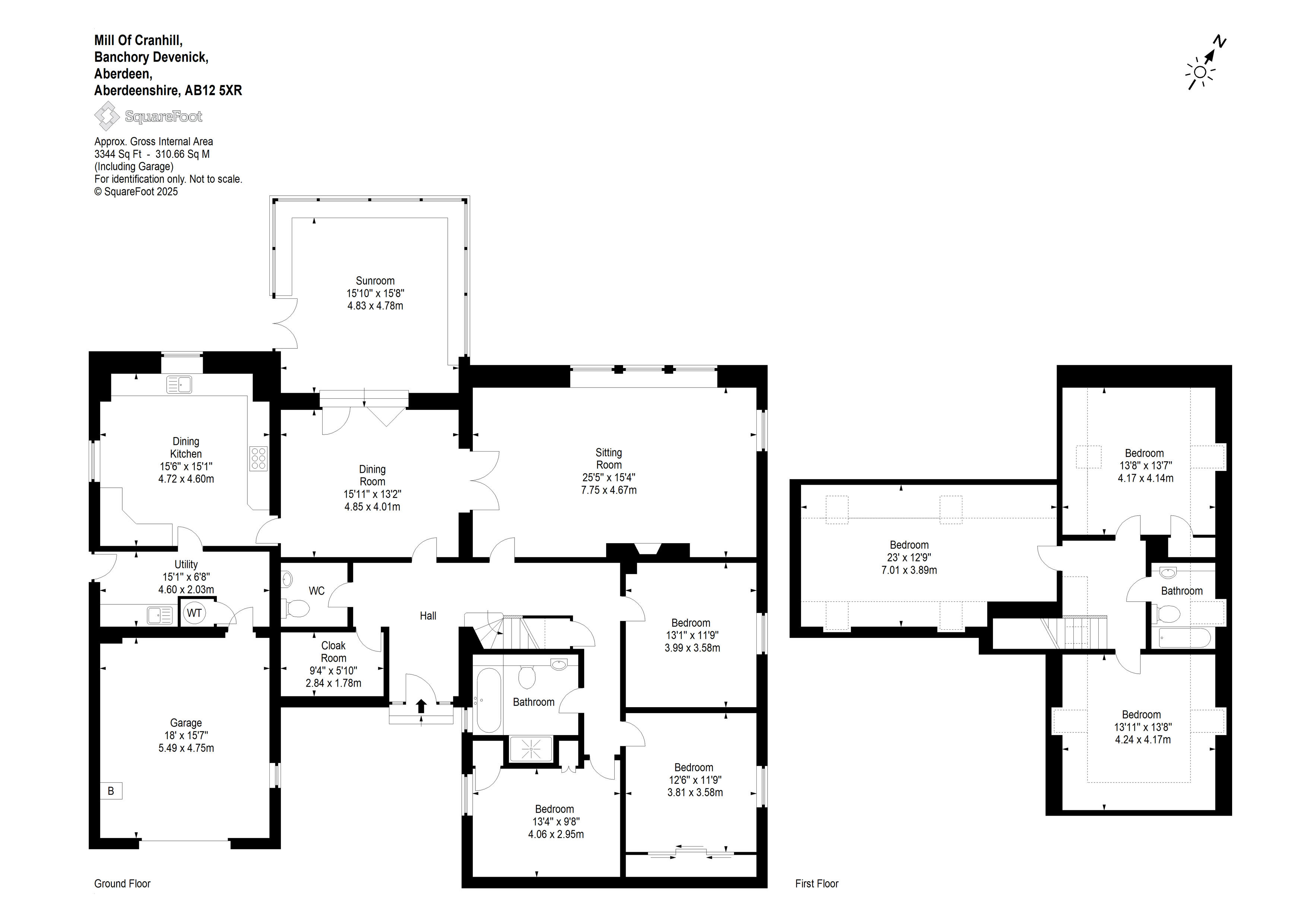
Mill of Cranhill is a superb, detached property enjoying a private elevated position in the desirable Banchory-Devenick area of Aberdeen City. The west side of the house is a former mill with refurbished Mill Wheel and has been exceptionally well extended over the years to create a home that offers flexible space and versatility over two floors. Sat in around 0.48 of an acre, the grounds are generous with a large south facing garden and of particular note is the incredible open views across the surrounding countryside towards the city & north sea.The entrance hall is a generous, welcoming space and has a walk-in cloak cupboard, perfect for coats, boots and storage. Adjacent is a handy cloakroom. The main sitting room is a beautiful room with open views over the garden grounds and beyond and has a gas fire. Double doors lead through to the formal dining room and from here, steps lead down to the sunroom. Bi-folding doors between the dining room and sunroom give the choice to have an open flow or as separate living space. The sunroom is a wonderful addition to the home, with surrounding windows capturing those incredible views across the city towards the coast. Double doors open out to the garden and there is under floor heating. The family dining kitchen has a double outlook and is well equipped with painted solid oak ‘Drumoak’ kitchen units, plenty worktop space, plus room for a generous family dining table. From the kitchen you access the useful utility room, which in turn provides access to the garden and garage. On the ground floor there are three double bedrooms. The first is a generous room with picture window and would make a pleasant home office. The second double bedroom has extensive built in wardrobes, and the third is equally spacious in size. Adjacent to these bedrooms is the beautiful main family bathroom, with spa bath and separate shower unit.Continuing upstairs there are two equally spacious double bedrooms, both with velux style windows to the front & rear. Located between the two bedrooms is a bathroom with white three-piece suite. Completing the accommodation is the versatile 6th bedroom. This is a large room which a huge amount of flexibility. It has proven ideal as a child’s playroom, tv room or that extra bedroom space and could even be used as a home office or hobby room. Mill of Cranhill is fitted with an alarm system that can be controlled remotely.ACCOMMODATIONGround Floor: Entrance hall, cloakroom, sitting room, dining room, sunroom, dining kitchen & utility room. Three double bedrooms and bathroom.First Floor: Two double bedrooms, bathroom and further large bedroom/sitting room.GARDEN GROUNDSMill of Cranhill sits in around 0.48 of an acre offering a superb amount of outdoor space. The house is surrounded by grass lawns, with traditional stone dyke walls and bound by mature hedging and shrubs. There is a sheltered patio area to the rear of the house, ideal for outdoor dining, and a further perfectly placed patio area to the front capturing the outstanding views towards the city. The private tarred drive, leading from the track, leads up to the house and there is plenty space for parking to the side and rear with access to the 1.5 integral garage. Timber garden shed.SERVICES, COUNCIL TAX AND ENERGY PERFORMANCE CERTIFICATE(S)Water MainsElectricity MainsDrainage Septic TankTenure FreeholdHeating Oil Heating with LPG for Cooker & FireCouncil Tax Band EEPC Band ESITUATIONBanchory-Devenick is located on the south side of the River Dee and surrounded by beautiful countryside and woodland walks, yet only a short distance from the centre of Aberdeen City. Education is catered for in the area, including a highly reputable primary school, and a selection of other amenities can be found at Bridge of Dee Retail Park, a short walk away. There are several excellent private schools within easy commuting distance including Robert Gordon’s College. St Margaret’s School for Girls and Albyn School, whilst the International School of Aberdeen is also very accessible. Robert Gordon University and many recreational facilities including Paul Lawrie Golf Centre are close by and the industrial estates to the south of the city are easily accessible including Portlethen, Altens and Tullos. The A92 is minutes away giving access to both the North & South of Aberdeen and Aberdeen International Airport can be reached in around 20 minutes by car. Union Street in the city centre with its wide range of shops, restaurants, coffee shops, cinema and bars are a short 5 miles from Mill of Cranhill and provides all the leisure, recreational and entertainment facilities expected from the oil capital of Europe.