Brigton House

Laurencekirk, Kincardineshire, AB30 1BA

Offers In Region £550,000

4 acres

Bedroom Count icon 5

Reception Count icon 5

Bathroom Count icon 3

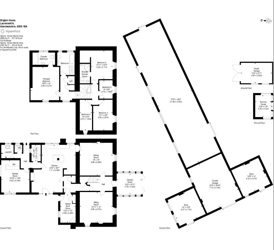
  • 5 reception rooms. 5 bedrooms. 3 Bathrooms
  • Conveniently located in South Aberdeenshire, close to both Laurencekirk and Edzell and the boundary of with Angus
  • Around 4 acres ideal for equestrian or small holding use
  • Extensive outbuildings offering storage or development potential
  • Nestled in a small hamlet of homes in a rural setting but with easy access to main rail and road networks
  • Stunning views to the hills and countryside
  • Home Report Valuation £575,000

Brigton House is a most attractive country property, which benefits from a range of detached outbuildings including a double garage. The house also has enclosed gardens and paddocks which extend to around 4 acres. It is an attractive house south-facing and surrounded by established garden grounds. With origins stretching back as far as 1860, the older part of the house is stone-built whilst further extensions have been added. The latest addition to the property is a beautiful garden room constructed with a Green Oak timber frame. This contemporary room is the ideal to enjoy the south facing sunshine all year round and adds an attractive frontage against the whitewashed exterior walls. Brigton House provides the ideal outdoor lifestyle property. The gardens are a wonderful haven for all to enjoy, whilst the comprehensive range of outbuildings, including a 120sqm detached workshop provide a wealth of opportunities to any purchaser.A double gated drive leads up to the rear and side elevation of the house, the tarred driveway wraps around the house and provides ample parking for several vehicles. From the side driveway, the property is accessed via the working side of the property. A handily placed WC and utility room serve the kitchen area and a games room. A large pantry cupboard provides superb storage. A second rear elevation exterior door enters a hallway that has generous proportions and is currently utilised as a study with corner set log burning stove and again ample storage cupboards. Both rear hallways lead into the farmhouse style dining kitchen, which is the heart of this traditional home.The dining kitchen is an expansive room, set on an open plan, sub divided by furniture placement to provide a comfortable informal dining area combined with a comprehensive fitted timber style base mounted kitchen units with a bespoke central peninsular island. The heavy roof beams add to the country farmhouse style kitchen whilst the floor tiles are both attractive yet practical for any busy family. The kitchen features a range cooker, Belfast sink and ample preparation space. The dining area has an attractive exposed stone fireplace with a reclaimed wooden mantle, timber framed French doors not only allow a high ingress of natural light to the room, they provide a view and access to the garden grounds beyond. Moving on through the house from the dining kitchen, the front reception hall gives way to more formal accommodation. Two immaculate front rooms almost mirror each other in size. The sitting room is a warm and inviting room with a grand working fireplace with ornate surround taking centre stage. Many original features remain in the sitting room including, original sash and case windows with timber surrounds, ceiling cornicing and exposed timber flooring. The formal dining room equally has been well presented and benefits from a working fireplace and ornate cast iron and slate hearth with timber mantle. A striking addition to the property is the single storey pitched roof green oak framed garden room. With glass on three sides including bi-folding doors, this expertly crafted garden room is awash with warm natural light. The uninterrupted views to the garden and countryside beyond have been fully maximised and there is ample space for a variety of free-standing furniture. Heading up the staircase to the upper level, the owners have retained the original flooring as a hint to the true age of the property. The staircase splits to two upper-level wings. Four bedrooms are found to the front of the property all of which are immaculately presented and the largest features a working fireplace and exquisite en-suite shower room. A beautiful and contemporary family bathroom has well-appointed and features a free-standing double bath with a separate walk-in shower enclosure. Full wall tiling, with under floor heating maximise a luxurious feel. Completing the upper-level accommodation is the large master bedroom with a range of fitted wardrobes and storage space. The en-suite bathroom has been upgraded to suit the needs of a modern family whilst retaining some striking original features. It is worthy of note that there is full fibre broadband to the property, ideal for those working form home.ACCOMMODATIONGround Floor - Entrance Hall, Living Room, Dining Room, Garden room, Study, Open Plan, Kitchen/Sitting Room, Games Room, Utility Room, Pantry and Cloakroom with W.C.First Floor - Master Bedroom with en-suite Bathroom, One Further Bedroom with en-suite Shower Facilities, Three Further Bedrooms and Bathroom.GARDEN GROUNDSBrigton House benefits from substantial, mature, and well maintained garden grounds that surround the property, creating a tranquil and private outdoor sanctuary. Adjacent to the garden is a paddock extending to approximately 4 acres, further enhancing the properties appeal. The gardens feature expansive lawns, mature trees, and a variety of plantings, including, fruit trees and bushes, offering an idyllic setting for relaxation and outdoor activities. A haven for wildlife, the grounds are also perfectly suited for pets.A watercourse at the bottom of the garden forms the boundary with adjacent farmland and adds to the variety of wildlife which frequents the garden. Vehicular access is secured via remote-controlled metal gates leading to a spacious driveway at the front and side elevations of the property. Boundaries are clearly defined with a combination of timber fencing, stone walls, and post and wire fencing. Enjoy picturesque views over the adjoining paddocks and the surrounding rural landscape.LANDThe property includes approximately 4 acres of well-maintained grass paddocks, enclosed by durable post and wire fencing, offering secure and versatile land suitable for a variety of uses.OUTBUILDINGSBrigton House offers a range of versatile outbuildings presenting significant potential. The largest is a well-maintained, single-storey external store extending to approximately 120 sqm, accessible via both vehicle and pedestrian doors. Complementing this are a double car garage, a potting shed, and a log store, all forming part of the main outbuilding complex. Additionally, there is a detached single car garage. All outbuildings are fitted with lighting and power, enhancing their practicality and usability for a variety of purposes.BUSINESS OPPORTUNITYWith its extensive and flexible outbuildings, generous land Brigton House presents a compelling business opportunity. The spacious external store and additional garages offer ideal facilities for workshop use, storage, or small-scale commercial enterprises. The paddocks and surrounding grounds provide further potential for agricultural, equestrian, or lifestyle ventures. Direct fibre broadband to the house enhances the potential for home working. This property is perfectly suited to entrepreneurs seeking a versatile base combining residential comfort with business potential.Water - MainsElectricity - MainsDrainage - Septic TankTenure - FreeholdHeating - OilCouncil Tax -Band FEPC - DBrigton House is conveniently situated, close to Laurencekirk and Fettercairn in Angus, and 2.4 miles to the A90 dual carriageway which is easily reached. This is an appealing and scenic area of countryside, with the Grampian hills and glens to the north. The property is ideally situated for those who wish to enjoy the range of outdoor pursuits offered in the surrounding areas. From Edzell the scenic Cairn o’ Mount route gives access to Deeside. The Angus Glens also provide some of the best hill walking in eastern Scotland and skiing at Glenshee. Golf courses in the area include Edzell and Brechin, with the championship course at Carnoustie nearby. There are outstanding sandy beaches at Lunan Bay and St Cyrus. Laurencekirk has a comprehensive range of facilities including railway station with intercity travel, Mearns Academy, Laurencekirk Primary, several nurseries, traditional parks at each end of the town, modern health centre and dental practice, gyms, hairdressers and barbers, and a variety of eating establishments, butcher, shops, and garages. Primary schooling for Brigton House would be at Luthermuir primary and secondary at Mearns Academy in Laureneckirk.The towns of Stonehaven, Montrose and Brechin are also all within easy reach. The nearby village of Edzell also has good local shopping including a butcher, post office, coffee shops, chemist, and health centre, together with a country club within the Glenesk Hotel, and a renowned 18-hole golf course, along with a 9-hole course and driving range. Further afield, more extensive shopping and business services are found in Forfar, the county town, and in Montrose. Private schooling is available in Aberdeen and locally at Lathallan (Johnshaven), which has a dedicated bus service from Brechin, as has the High School of Dundee. The nearby A90 provides fast access to Aberdeen and south to Dundee which are both easily reached and offer all the services expected of major cities. Dundee and Aberdeen have renowned cultural facilities including the V&A museum in Dundee. There are railway stations at Montrose and Laurencekirk on the east coast mainline with regular services to Aberdeen and the south. Aberdeen Airport provides a range of domestic and European flights and there is a service from Dundee to Heathrow.