Backaskaill Farm

Sanday, Orkney, Orkney Islands, KW17 2BA

Guide Price £1,200,000

311 acres

  • Outstanding traditional listed farmhouse
  • Charming renovated farm cottage
  • Currently operating as a successful holiday lets business
  • Good quality farmland
  • A useful range of farm buildings
  • Traditional steading with potential for development
  • Stunning and extensive beach frontage
  • Additional farmland available by separate negotiation

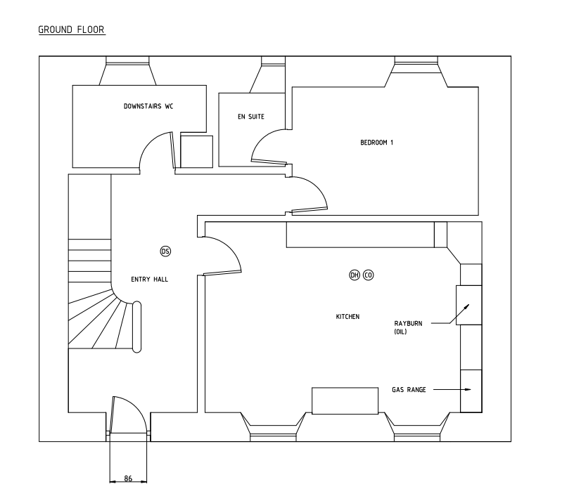
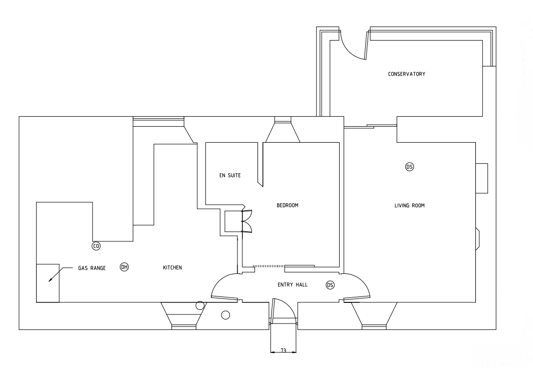
Backaskaill is situated in a productive area on the island of Sanday. The farm for sale includes a magnificent traditional farmhouse, an adjoining 1 bedroom cottage, a wide and useful range of farm buildings and land that extends to about 125.8 ha / 311 acres. Additional land may be available for sale subject to separate negotiation. A productive grass and cereals farm, the land ranges from sea level up to about 40 metres above sea level and according to the James Hutton Institute, it is primarily classified as Grades 4(2) and Grade 5(2). It is registered with SGRPID for IACS purposes whilst the farm is well equipped in terms of buildingsHISTORIC FARMING SYSTEMHistorically, Backaskaill forms a wider farming unit and was operated in conjunction with the neighbouring unit of How, benefitting from the Organic Aid Scheme. There is ample area of land for the growing of forage and cereal crops with the land adjacent to the dunes being particularly well suited for the overwintering of cattle. The wider farming business currently benefits from a range of support payments including the Organic Aid Scheme, Basic Payment Scheme, Less Favoured Area Support Scheme, Scottish Beef Calf Scheme and the Agri-Environment Climate Scheme. BACKASKAILL FARMHOUSEOf traditional stone construction under a slate roof the most attractive, grade B listed Backaskaill House has been tastefully renovated and decorated to a very high standard. Whilst it is currently let as 5-starholiday accommodation, it would also make for an exceptional family home with the high quality kitchen dining room, the elegant sitting room and three generous bedrooms Spacious and very well-appointedaccommodation is provided over two storeys and includes: Ground floor – Kitchen/Dining Room, Utility Room, Hallway, Bedroom with ensuiteFirst Floor - Lounge, 2 x Bedrooms, BathroomThere is a well maintained garden with a summer house which has been adapted for use as a home spa. BACKASKAILL COTTAGEAdjoining Backaskaill House, the cottage is also currently let as part of the wider award winning, selfcatering holiday business. Comfortable and suitable for use either as a holiday let, granny annexe orindeed as additional accommodation to the main house, the cottage provides accommodation over a single storey and includes:Ground Floor – Lounge, Conservatory, Kitchen/Diner, Bedroom with ensuiteThe farmhouse and cottage are located in close proximity (the proverbial stones throw away) from one of Scotland’s most beautiful beaches which presents ample opportunities to enjoy water sports andwildlife watching and a wide range of other water sport and amenities. SERVICES, COUNCIL TAX AND ENERGY PERFORMANCE CERTIFICATE(S)Backaskaill Farmhouse & Cottage Water - MainsDrainage - Private Electricity - MainsHeating - Oil-fired Stanley rangeCouncil Tax - Band D Tenure - Freehold EPC - FFARM BUILDINGSThe farm buildings (see plan) extend to a range of traditional B Listed dwellings which may be suitable for conversion into additional accommodation (subject to obtaining all necessary consents) as well as a range of more modern farm buildings, as follows:1. Utility Shed (12m x 6m)2. Stables3. Laundry4. Cattle Court (66m x 4.8m) Of stone wall construction, profile roof and concrete floor5. Yard (sheep dipper) (24m x 24m)6. Barn (25.5m x 4.8m) Of stone wall construction, profile roof and concrete floor7. Loose Byre (31.5m x 12m)of steel portal frame construction, corrugated roof, timber cladding,poured concrete walls and concrete floor8. Cubicle House (30m x 30m) of steel portal frame construction, corrugated roof, profile cladding,poured concrete walls and concrete floor9. Loose Court (48m x 12m) of steel portal frame construction, corrugated roof, profile cladding,poured concrete walls and concrete floor10. Silage Pits (30m x 12m and 36m x 12m) earth walls and concrete floor11. Hen HouseTHE LAND The productive farm land extends to 125.8ha / 311 acres and includes some of the best quality agricultural land to be found on Sanday and within the Orkney archipelago. Divided between 16 separateenclosures, the subjects provide gently undulating land within easy reach of the main farmstead which in addition also includes an area of cliffs and foreshore which add enormously to the amenity valueof the farm. Ideal for livestock, the land is in good heart having been farmed in a grass rotation, with cereal and swede breaks in recent years and is fenced and watered. The land has benefited from regularapplications of dung, slurry and shell sand which has a 32.5% lime content. Additional land adjoining the farm and also elsewhere on the island is available by separate negotiation. ACCESSThe farm can be accessed directly from the public road network.SITUATIONOrkney, also known as the Orkney Islands, is an archipelago comprising about 70 islands situated some 10 miles north of the Scottish mainland. Orkney’s largest settlement and also its administrative centreis Kirkwall. The islands have been inhabited for at least 8,500 years, originally occupied by Mesolithic and Neolithic tribes and then by the Picts. Orkney was colonised and later annexed by the Kingdom of Norway in 875 and settled by the Norseman. In 1472 the parliament of Scotland absorbed the Earldom of Orkney into the Kingdom of Scotland following failure to pay a dowry promised to James III of Scotland by thefamily of his bride, Margaret of Denmark. The Norse connection with Orkney is strong with many links still in place, including the application of Udal Law. Orkney contains some of the oldest and best preserved Neolithic sites in Europe. The heart of neolithic Orkney which includes the village of Skara Brae, the Standing Stones of Stenness, the Maeshowe passage grave and the Ring of Brodgar is a designated UNESCO World Heritage Site. Orkney also has an abundance of marine and avian wildlife.Kirkwall boasts a large number of services including banks, supermarkets, pharmacies, libraries, sports centre and swimming pool, in addition to numerous specialist shops. The area is well resourced interms of agricultural infrastructure being well served by general merchants, agricultural suppliers and machinery dealers, in addition to Kirkwall Auction Mart. The soil of Orkney is generally very fertile and most of the land is taken up with farms, agriculture being by far the most important sector of the economy. More than 90% of agricultural land is used for grazing of cattle and sheep.Sanday is the largest of Orkneys’ outer islands and is well known for its rich, agricultural land and outstanding livestock. The island is well blessed with stunning coastal scenery, long sandy beaches andbenefits from high quality convenience shopping and other amenities including primary and secondary schooling, hotels, a medical practice and a dynamic social community scene. There are excellenttransport links by sea and air to the mainland.