Hazelgrove

Montrose Road, Inverbervie, Aberdeenshire, DD10 0PJ

Offers Over £695,000

1 acres

Bedroom Count icon 5

Reception Count icon 5

Bathroom Count icon 3

  • 4 reception rooms. 5 bedrooms
  • Dressing room & 3 bathrooms
  • Superb public rooms for entertaining
  • Sunroom with wood burning stove
  • Triple detached garage with sauna
  • Garden grounds of around 1 acre

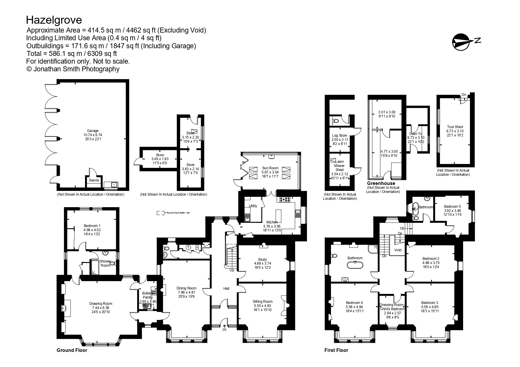
Hazelgrove is a wonderful detached Victorian house dating back to the 1860’s and sits handsomely in an elevated position in private garden grounds of around an acre. With an easterly elevated position, the property has an outlook across Inverbervie to the seacoast and is a country house located in a village, offering the unique benefit of the tranquillity of the countryside, with the convenience and community of village life. As one would expect the property is filled with traditional features and opulence with high ceilings, grand entertainments rooms and large, tall imposing windows to name a few. Yet modern comfortable additions, including the sunroom with wood burning stove, ensure a sense of warmth and openness. The house invites endless natural light and offers extremely flexible and very spacious family accommodation over two levels.The entrance hall is a welcoming space and to one side is the formal dining room, with large bay window and fireplace, which continues through to the special drawing room. This is a wonderful formal room with AGA wood burning stove and a useful butlers pantry with outdoor access. The rear lobby leads to a ground floor double bedroom and adjacent shower room. Returning to the main entrance hall, to the right side is the formal sitting room with fireplace and beautiful bay window. The home office is a good working space, although is flexible, and beyond this is the main kitchen. This kitchen is well fitted with good solid wood units and a central island unit with granite worktops. Access from this room is a handy utility room. Beyond is the impressive sunroom, with wood burning stove and doors opening out to the wonderful garden. Completing the accommodation to the ground floor is the cloakroom.To the first floor there are three equally spacious large double bedrooms with two specifically enjoying the open views across Inverbervie to the Sea. A very impressive family bathroom has a free-standing bath with separate shower unit and there is a further room, ideal as a dressing room or nursery. Finally, there is the fifth spacious bedroom with shower room adjacent.ACCOMMODATIONGround Floor: Vestibule, entrance hall, sitting room, dining room, drawing room & sunroom. Butler’s pantry, study, kitchen, bedroom and shower room. Utility room and Cloakroom.First Floor: Three double bedroom, dressing room, master bathroom, further double bedroom and bathroom.GARDEN GROUNDS & OUTBUILDINGSThe garden grounds extend to around 1 acre ensuring privacy, plenty useful outdoor space and shelter.There is a side area of garden with mature trees whilst the rear area of garden is mostly lawned with apple trees and paths meandering through. There is a further side area of garden with lawn and mature trees, and behind the house are paved seating areas.Stone pillars flank the entrance way to Hazelgrove with gates and the tarred drive continues past the front of the house to the side. A traditional stone wall with double timber gate separates the front grounds from the rear, leading through to the triple garage. The garage was completed in recent years and is an impressive modern oak timber-built garage with a tiled roof garage, three double opening oak doors, sink, power, light and a sauna. Greenhouse divided into two with wooden staging and water, a lean to and a concrete block tool shed with power and light. A further stone-built range with a slate roof has a log store, WC, and lawn mower shed.SERVICES, COUNCIL TAX AND ENERGY PERFORMANCE CERTIFICATE(S)Water MainsElectricity MainsDrainage MainsTenure FreeholdHeating Gas CHCouncil Tax Band GEPC Band DSITUATIONInverbervie, or ‘Bervie’ as it is known locally, is a charming coastal town located in Kincardineshire, bound by Aberdeenshire to the North & Angus to the South. Located midway between Stonehaven and Montrose, and only 26 miles from Aberdeen City Centre, the town is known for its scenic surroundings, including breathtaking sea views and a rugged coastline. ‘Bervie’ has a welcoming community feel, with a range of local amenities such as specialist local shops including the Bervie Baker, schools, and parks, making it an ideal location for families and those seeking a quieter yet accessible base. Popular local amenities include the Mill of Benholm café south of Inverbervie & the popular Sillyflatt farmers shop and field kitchen. With excellent transport links to nearby towns and Aberdeen, Inverbervie offers the perfect balance of country living with easy access to city conveniences.There are a number of small fishing ports and harbours from which sea fishing expeditions and sailing can be undertaken, including Gordoun, just to the south, Catterline which is a haven for artists, and Johnshaven which has a well-known local lobster merchant and the very popular ‘The Lobster Shop’. There is a walk along the coast from Bervie Bay to Gordoun. These charming communities add to the area’s appeal, offering relaxing seaside experiences and a strong sense of heritage. The area is also well-served for education, with the prestigious Lathallan School nearby a highly regarded private day and boarding school set in beautiful surroundings, providing excellent academic and extracurricular opportunities for children of all ages. Equally there is a primary school in the town and secondary schooling is available at Mackie Academy in Stonehaven and Means Academy at Laurencekirk.Stonehaven, only 15 minutes away by car, has a popular harbour with many traditional pubs and restaurants and still retains much historical interest and the ruins of Dunottar Castle to the south which is an iconic Scottish fortress.